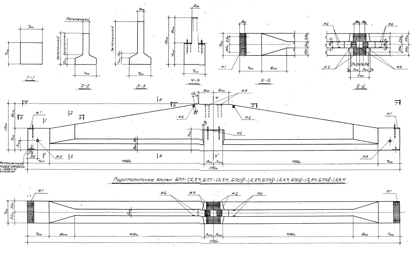
Балка подстропильная БПЭ III-2 предназначена для использования в строительстве как элемент каркаса кровли. Изготовлена из железобетона, что обеспечивает высокую прочность и долговечность конструкции. Балка имеет специальное пазообразное соединение для удобства монтажа и обеспечения надежности крепления к другим элементам кровли. Ее габариты и параметры соответствуют стандартам качества и безопасности, что делает ее идеальным выбором для строительства крыши любого типа здания.









