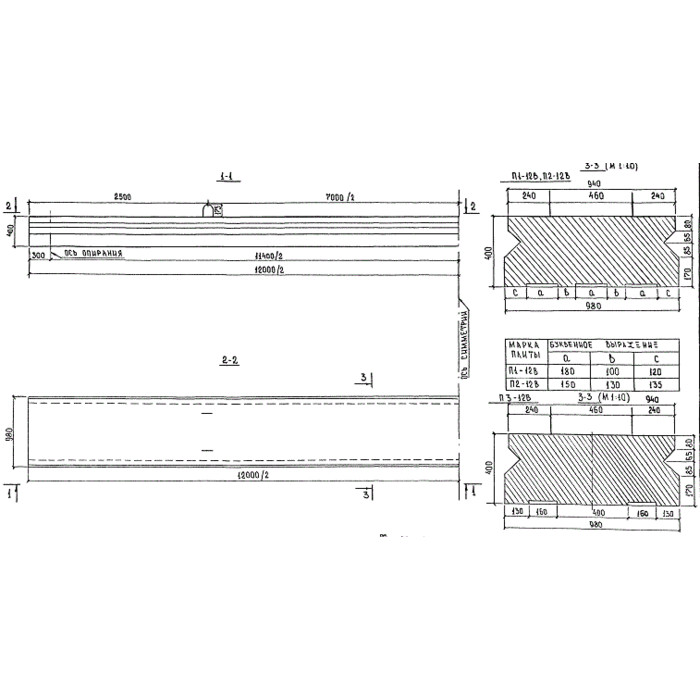
Размеры и характеристики п 12-19 представлены в таблице ниже. по ГОСТ допускается отклонение размеров на более 4-6 мм.
- Длина: 12 000 мм.
- Ширина: 940 мм.
- Высота: 600 мм.
- Вес: 9 т.
- Объем: 3.000 м³
- ГОСТ: Серия 3.503.1-61
Доставка п 12-19 осуществляется собственным транспортом в г. Гатчина, области и другим регионам России! Расчет доставки можно заказать в разделе Доставка.
Транспортировать тяжеловесный груз согласно ГОСТ Серия 3.503.1-61 разрешено только в горизонтальном положении в спецтранспорте. При погрузке/разгрузке запрещено перемещать по нескольку штук. Исключение: такелажные работы специальными устройствами, где допускается подъем одновременно нескольких изделий.
При складировании на открытом грунте в основание штабеля кладется прокладка толщиной не менее 10 см, необходим сток для воды.
п 12-19 цена за штуку и зависит от их размера, толщины, наличия/отсутствия укрепляющих добавок, армирования. Чтобы не переплачивать за товар, целесообразно заказать напрямую от производителя на заводе ЖБИ Маркет. Так вы получите сертифицированные железобетонные изделия с лабораторным заключением и по оптимальной стоимости.
Выгодно купить п 12-19 в Гатчине без посредников на заводе ЖБИ Маркет. Сейчас мы наращиваем производственную мощность и ищем новых надежных партнеров.
Если Вы всерьез настроены на сотрудничество – свяжитесь с нами по телефонам, указанным во вкладке «Контакты».









